Bilocale in vendita

Carmagnola, Via vinovo
€ 85.000
2 locali 2 locali
65 Mq 65 Mq
1 bagno 1 bagno

Bilocale in vendita

Carmagnola, Via vinovo

Descrizione annuncio

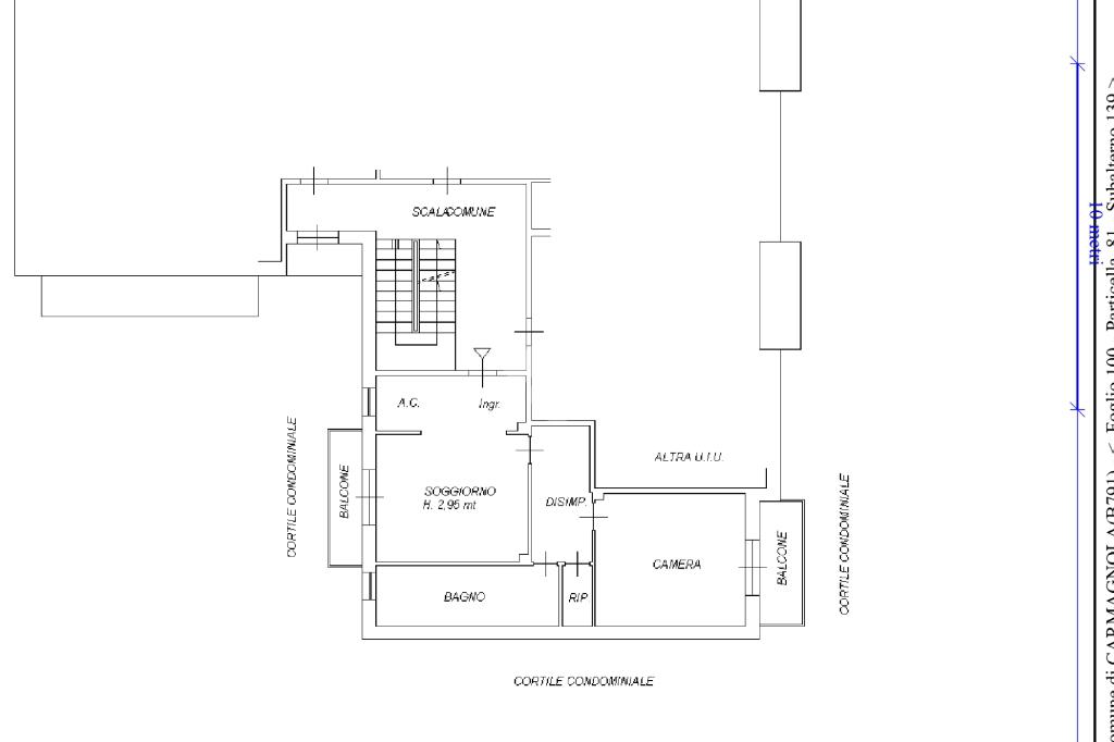
Nel comune di Carmagnola proponiamo in vendita un appartamento situato al primo piano di uno stabile servito da ascensore.

L’immobile si distingue per una distribuzione funzionale degli spazi: l’ingresso si apre su tinello con cucina/soggiorno, un disimpegno conduce alla zona notte composta da un’ampia e luminosa camera da letto, bagno finestrato e pratico ripostiglio. Completano la proprietà due balconi, ideali per godere di spazi esterni.

Sono inoltre inclusi box auto e cantina.

L’appartamento è attualmente locato fino al 31/12/2026, rappresentando un’interessante opportunità anche ad uso investimento.

Soluzione ideale per chi desidera una residenza comoda e ben collegata nel cuore di Carmagnola.

Mostra tutto

Nelle vicinanze

Trasporto pubblico Trasporto pubblico
stazione di Carmagnola
stazione di Carmagnola
1,0 Km
Carmagnola (Scuole)
Carmagnola (Scuole)
410 m
Carmagnola (Stazione C.C.)
Carmagnola (Stazione C.C.)
660 m
Ricariche auto elettriche Ricariche auto elettriche
Carmagnola Primo Maggio | EnelX Fast
350 m
Municipio di Carmagnola | EnelX
500 m
Carmagnola Pertini | EnelX
890 m
Carmagnola Via Torino | EnelX
1,1 Km
Carmagnola Campi Sportivi | ENELX
1,2 Km
Farmacia Farmacia
Farmacia
520 m
Farmacia dei Cappuccini
1,2 Km
Supermercati Supermercati
Carrefour
240 m
Aldi
990 m
Bennet
1,6 Km
Ristoranti Ristoranti
Ristoranti
510 m
Trattoria Monviso
570 m
Pizzeria Due Mori
870 m
Agriturismo Basso dei Sola
1,4 Km
Fattoria Didattica
1,9 Km
Mostra tutto

Caratteristiche

Rif.:
61195462
Piano:
1 di 4 con ascensore (Piano basso)
Box:
1
Balconi:
2
Camere da letto:
1
Arredamento:
Assente
Mostra tutto
Prezzo Prezzo
€ 85.000
Rata mutuo Rata mutuo
€ 401 / mese
Spese annue Spese annue
€ 800
Proponi il tuo prezzoProponi il tuo prezzo

Classe Energetica

Questo immobile è esente da classe energetica
Anno di costruzione:
1970
Riscaldamento:
Centralizzato
Tipo impianto:
A radiatori
Tipo alimentazione:
Metano

Ti interessa visionare l'immobile?

Fissa un appuntamento  Fissa un appuntamento

Richiedi informazioni

Clicca su Leggi per aprire l'informativa
* Questi campi sono obbligatori

Calcola il tuo mutuo

Semplice e senza impegno
Anticipo

( % )
Mutuo

( % )

pochi semplici passi

inserisci i tuoi dati
Questionario completato
Grazie per aver richiesto un appuntamento senza impegno con un nostro Consulente del Credito e Assicurativo.

Hai inserito correttamente tutti i dati necessari e a breve riceverai una e-mail con un link da convalidare per inviare i tuoi dati.
Affiliato
Carmagnola Case Sas
Largo Vittorio Veneto, 1 10022 Carmagnola (TO)

Il nostro staff


  • Manuel Galluzzo
    Affiliato

  • Alessia Spagnolo
    Coordinatrice
Largo Vittorio Veneto, 1 10022 Carmagnola (TO)
Zona: Carmagnola
Mostra su mappa
Orari: 9/12.30 ----- 15/19.30 (DAL LUNEDI AL VENERDI) 9/17 (SABATO)
Affiliato
Carmagnola Case Sas
Largo Vittorio Veneto, 1 10022 Carmagnola (TO)

2026 Tecnocasa Franchising S.p.A. - P. IVA 08365160152 - Via Monte Bianco 60/A 20089 Rozzano (MI). Ogni agenzia ha un proprio titolare ed è autonoma. Privacy policy | Policy utilizzo | Cookie policy