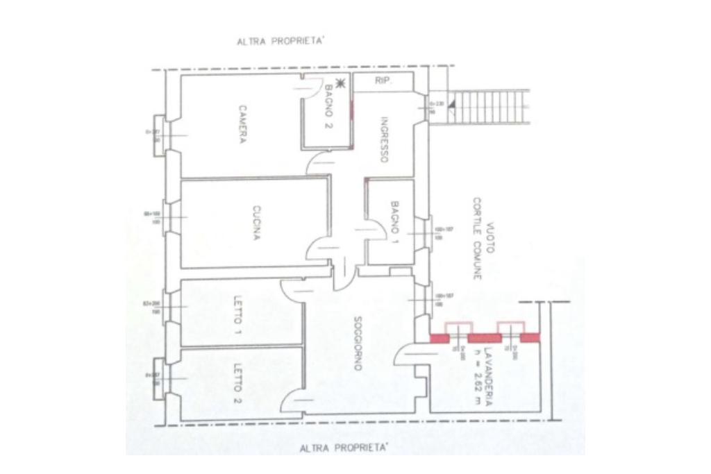
6 locali in vendita

Carmagnola, Via Ferruccio Valobra
€ 129.000
Prezzo aggiornato
6 locali 6 locali
163 Mq 163 Mq
2 bagni 2 bagni

6 locali in vendita

Carmagnola, Via Ferruccio Valobra

Descrizione annuncio

Nel cuore di Carmagnola, proponiamo in vendita un affascinante immobile risalente al 1930. Questa spaziosa proprietà di 163 mq offre un ambiente accogliente e funzionale, ideale per chi cerca una soluzione abitativa versatile. L'immobile si compone di sei locali ben distribuiti, che includono ampie stanze luminose e un layout che permette di personalizzare gli spazi secondo le proprie esigenze. La struttura conserva il fascino dell'epoca, con dettagli architettonici che aggiungono carattere e unicità. Situato in una zona ben servita, l'immobile offre la comodità di avere negozi, scuole e servizi a breve distanza. Perfetto per famiglie o per chi desidera uno spazio ampio e confortevole, questa proprietà rappresenta un'opportunità interessante per chi cerca una casa con storia e potenziale.

Mostra tutto

Nelle vicinanze

Trasporto pubblico Trasporto pubblico
stazione di Carmagnola
stazione di Carmagnola
580 m
Carmagnola (Scuole)
Carmagnola (Scuole)
200 m
Carmagnola (FS)
Carmagnola (FS)
550 m
Ricariche auto elettriche Ricariche auto elettriche
Municipio di Carmagnola | EnelX
100 m
Carmagnola Primo Maggio | EnelX Fast
510 m
Carmagnola Pertini | EnelX
680 m
Carmagnola Campi Sportivi | ENELX
700 m
Bennet di Carmagnola | EnelX Fast
950 m
Farmacia Farmacia
Farmacia
90 m
Farmacia dei Cappuccini
1,3 Km
Supermercati Supermercati
Carrefour
490 m
Bennet
1,2 Km
Aldi
1,3 Km
Ristoranti Ristoranti
Ristoranti
140 m
Pizzeria Due Mori
370 m
Trattoria Monviso
380 m
Agriturismo Basso dei Sola
1,8 Km
Fattoria Didattica
2,5 Km
Mostra tutto

Caratteristiche

Rif.:
61123758
Piano:
2 di 2 (Piano alto)
Balconi:
2
Camere da letto:
3
Arredamento:
Parziale
Condizionamento:
Autonomo
Mostra tutto
Prezzo Prezzo
€ 129.000
Rata mutuo Rata mutuo
€ 595 / mese
Spese annue Spese annue
€ 900
Proponi il tuo prezzoProponi il tuo prezzo

Classe Energetica

D
D
D
D
D
D
D
D
D
EP globale non rinnovabile:
163.71 kW h/m² anno
EP globale rinnovabile:
90.04 kW h/m² anno
EP invernale del fabbricato:
EP estiva del fabbricato:
Anno di costruzione:
1930
Riscaldamento:
Autonomo
Tipo impianto:
A radiatori
Tipo alimentazione:
Metano

Prezzo ridotto di €1 (8%%)

Ti interessa visionare l'immobile?

Fissa un appuntamento  Fissa un appuntamento

Richiedi informazioni

* Questi campi sono obbligatori

Calcola il tuo mutuo

Semplice e senza impegno
Anticipo

( % )
Mutuo

( % )

pochi semplici passi

inserisci i tuoi dati
Questionario completato
Grazie per aver richiesto un appuntamento senza impegno con un nostro Consulente del Credito e Assicurativo.

Hai inserito correttamente tutti i dati necessari e a breve riceverai una e-mail con un link da convalidare per inviare i tuoi dati.
Affiliato
Carmagnola Case Sas
Largo Vittorio Veneto, 1 10022 Carmagnola (TO)

Il nostro staff


  • Manuel Galluzzo
    Affiliato

  • Alessia Spagnolo
    Coordinatrice
Largo Vittorio Veneto, 1 10022 Carmagnola (TO)
Zona: Carmagnola
Mostra su mappa
Orari: 9/12.30 ----- 15/19.30 (DAL LUNEDI AL VENERDI) 9/17 (SABATO)
Affiliato
Carmagnola Case Sas
Largo Vittorio Veneto, 1 10022 Carmagnola (TO)

2025 Tecnocasa Franchising S.p.A. - P. IVA 08365160152 - Via Monte Bianco 60/A 20089 Rozzano (MI). Ogni agenzia ha un proprio titolare ed è autonoma. Privacy policy | Policy utilizzo | Cookie policy